top of page
Gestiller_rendu 2.jpg

Gestiller

Maison en paille

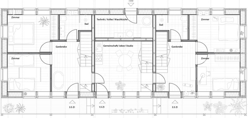
Le projet aborde intentionnellement la question de savoir comment construire en préservant les ressources, en économisant de l'espace et en améliorant l'efficacité énergétique. La surface habitable par personne est un thème important à cet égard. La situation de vie des habitant·e·s ne cesse d'évoluer. Le projet de maison en paille Gestiller répond à cette problématique en proposant un espace de vie flexible et modulable qui s’adapte à la situation de vie de ses habitant·e·s : Le bâtiment se compose de trois unités d'habitation, deux appartements de 3,5 pièces et un appartement de 1,5 pièce. Le petit appartement du milieu peut être utilisé, selon les besoins, comme un appartement à part entier, comme une pièce commune pour les deux appartements adjacents ou pour les agrandir.

Le bilan écologique des matériaux de construction utilisés fait également l'objet d'une attention particulière. Le bâtiment est principalement composé de paille. Celle-ci est placée sous forme de bottes de paille dans une ossature en bois. Le toit et les murs bénéficient ainsi d'une excellente valeur d'isolation. De plus, le bilan de CO2 du bâtiment est très faible, car contrairement aux matériaux isolants traditionnels tels que la laine de verre ou la laine de roche, dont la production génère beaucoup d'énergie grise, la croissance de la paille permet même de stocker du CO2.

PROJET

Etude de faisabilité

LIEU

Visperterminen, VS

Date

2023

Contact

Nous sommes joignables par téléphone et par e-mail.

Instagram
Mail
Téléphone

info@le-havle.ch

078 401 72 04   I  079 391 92 82

Kapellenweg 28, 3932 Visperterminen

Route de Champoussin 59, 1873 Val d'Illiez

bottom of page